

Замок Моттура 52.R771
Посилена модель 52-ї серії із защіпкою та керуванням фалевою ручкою. Основне призначення — експлуатація у важких сталевих дверях та конструкціях зі сталі. Замок підходить до правих та лівих дверей, випускається із трьома або чотирма ригелями. Виготовлений в Італії.
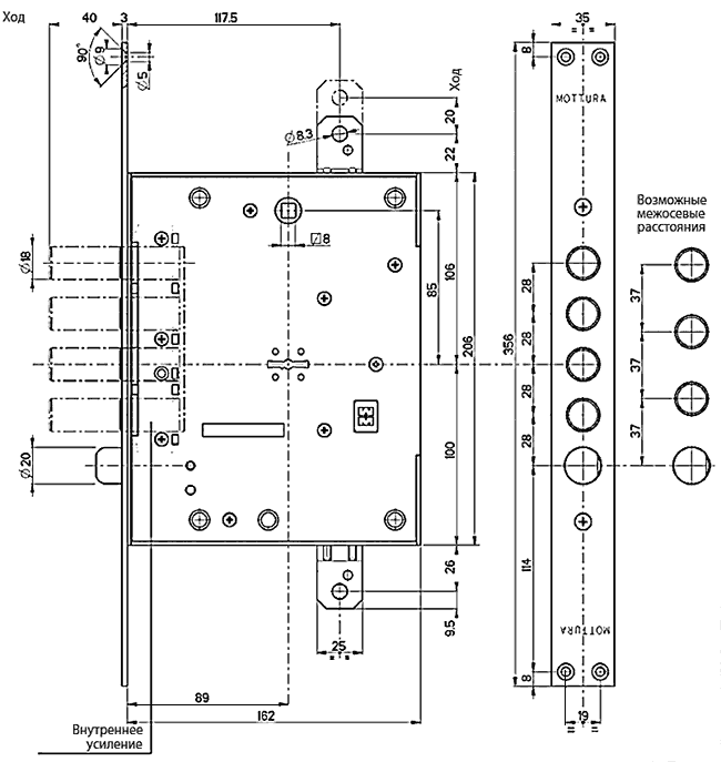
Особливості моделі
Особливістю замка є подовжені ригелі, внаслідок чого модель має більший розмір у глибину та збільшений бексет, якщо порівнювати зі звичайним замком 52.771. Подовжені ригелі при повному виході наполовину залишаються в замку, і зусилля при силовому зламі (віджиму ломом, наприклад) припадає точно на середину ригелів, а не область, близьку до краю ригелів, де вони кріпляться до засуву і де зазвичай відбувається вигин засуву з можливим зламом.
Модель оснащена секретним механізмом сугальдного типу з підвійною борідкою та крученими пружинами, розміщеному в модулі Easy Go. Секретність замка можна змінити встановленням нового модуля із сугальдами, що комплектується новим набором ключів. Частина сугальд оснащена обманними пазами, частина може бути без пружин та виставлятися ключем. Ключі замка несиметричні — борідки мають різні секрети на шести різних висотах. Всі описані рішення спрямовані на підвищення протистояння інтелектуальним методикам розкриття — насамперед роботі відмичками.
Замок 52.R771 оснащений захистом від згортання (силового повороту) — для цього ослаблений хвостовик засува, який при перевищенні зусилля повороту обламується, унеможливлюючи подальшу роботу згортанням. Стійка хвостовика засува захищена від висвердлювання запресованою загартованою кулькою, а спеціальний важіль запобігає забиванню ригелів усередину корпусу.
У комплект, крім замка, входить запірна планка, внутрішня та зовнішня декоративні накладки, набір із п'яти ключів.




