
Замок Моттура 52.Y771 My Key
Модель 52-ї серії з защіпкою, керуванням фалевою ручкою та можливістю самостійного перекодування. Основне призначення — експлуатація у важких сталевих дверях та конструкціях зі сталі. Виготовлений в Італії.
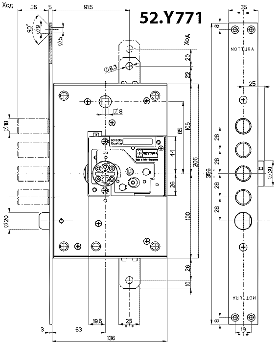
Особливості моделі
Найважливіші особливості моделі — можливість швидкої зміни секрету замка самотужки та система розпізнавання ключів з запобіганням їх копіюванню сторонніми особами.

Можливість зміни секретності замка надає механізм Nucleo Replay – при втраті ключів потрібно лише купити новий набір та перекодувати замок на нові ключі. Старі ключі після цієї операції підходити до замка вже не будуть і не відкриватимуть його.
У блоці Nucleo Replay також здійснюється розпізнавання ключа за допомогою технології My Key. Суть її в тому, що ключі мають спеціальні елементи, за допомогою яких механіка замка може впізнати свій ключ. У ключів My Key такими елементами є дві рухомі кульки, розміщені в ніжці ключа між борідками — без цих елементів ключі відкрити замок не зможуть.
Наявність кульок також запобігає небажаному копіюванню ключів — їх заготовки постачаються фабрикою виключно в сертифіковані центри Mottura Club (в Одесі такі є), а дублікати виготовляються після пред'явлення пластикової картки, що входить до комплекту, з кодовою комбінацією замка та одного з ключів. Тому навіть якщо ключ потрапить до рук сторонніх осіб, виготовити його дублікат буде непросто.
Модель має секретний механізм сугальдного типу з подвійною борідкою, ключі якого мають різні секрети на шести різних висотах. Однією з важливих особливостей Nucleo Replay є шайба відсічки, яка при повороті механіки замка перекриває по краях ключовий канал, не даючи можливості проводити маніпуляції відмичками, для яких потрібні краї ключової щілини.
У комплект, крім замка, входить запірна планка, внутрішня та зовнішня декоративні накладки, два набори ключів із різними секретами — допоміжного з двох та основного із п'яти ключів. Допоміжні ключі є повноцінними й при потребі їх цілком можна використовувати для відкриття та закриття замка.




