

Замок Моттура 54.795
Подвійний сугальдний замок 54-ї серії з защіпкою та керуванням фалевою ручкою. Основне призначення — експлуатація у важких сталевих дверях. Виготовлений в Італії.
Особливості моделі
Модель оснащена секретним механізмом сугальдного типу з подвійною борідкою і крученими пружинами, розміщеному в модулі Easy Go. Секретність замка можна змінити встановленням нового модуля із сугальдами, що комплектується новим набором ключів. Частина сугальд оснащена обманними пазами, частина може бути без пружин та виставлятися ключем. Ключі замка несиметричні — борідки (боки) мають різні секрети на шести різних висотах. Всі описані рішення спрямовані на підвищення протистояння інтелектуальним методикам розкриття — насамперед роботі відмичками.
Протистояння всіма видам зламу підвищується наявністю «фірмової» технології подвійних замків Моттура — перекриттям твердосплавною заслінкою ключової щілини верхнього замка при закритті нижнього.
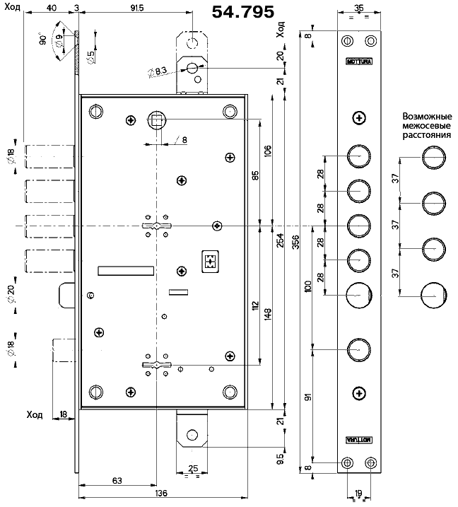
Замок 54.795 оснащений захистом від згортання (силового повороту) — для цього ослаблений хвостовик засува, який при перевищенні зусилля повороту обламується, унеможливлюючи подальшу роботу згортишем. Стійка хвостовика засува захищена від висвердлювання запресованою загартованою кулькою, а спеціальний важіль запобігає забиванню ригелів усередину корпусу.
Приводами до тяг системи багатостороннього замикання керує верхній замок.
У комплект, крім замка, входить запірна планка, внутрішня та зовнішня декоративні накладки, набір із п'яти ключів.




